Worthing Integrated Care Centre (WICC)
Healthcare
Worthing, West Sussex
BACKGROUND:
The new healthcare facility will provide GP, mental health, community, and dentistry services, as well as a new pharmacy, to the local population of Worthing.
REQUIREMENT:
Until the works on the new facility are completed, temporary healthcare units will allow services to proceed.
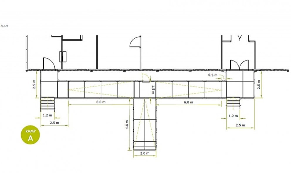
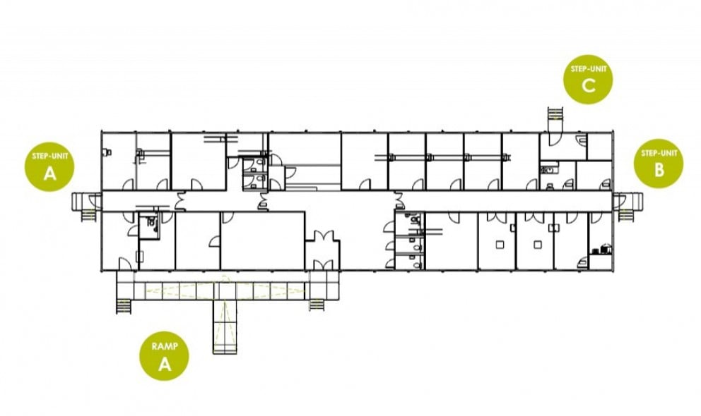
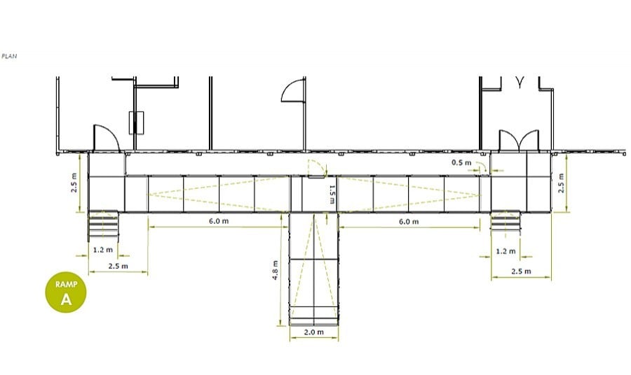
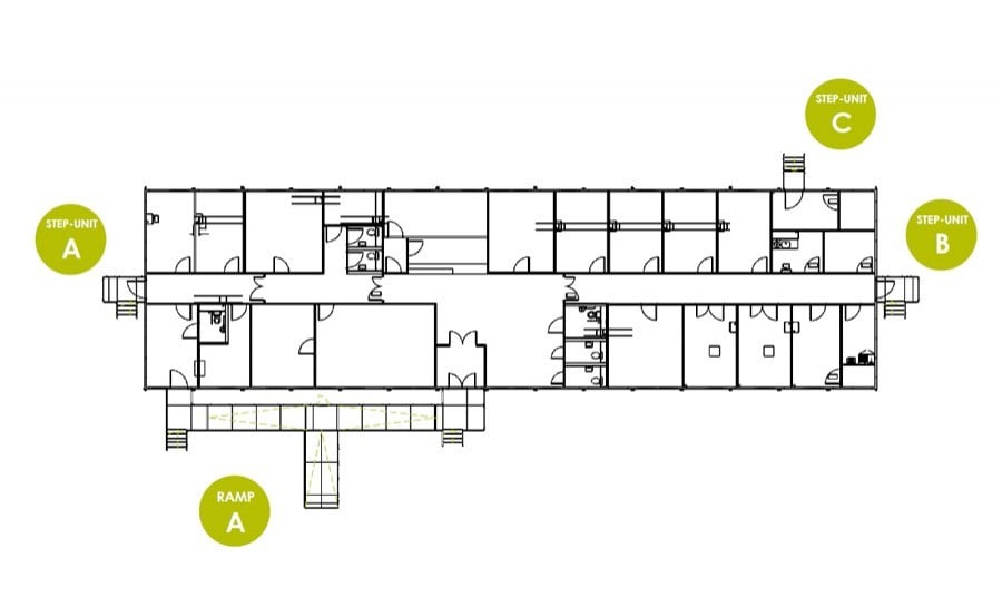
A rental ramp and steps to the units were essential and will be in situ for over two years. Also, full compliancy with Document M & K of the Building Regulations and the latest fire safety guidelines was necessary.
ADDITIONAL INFORMATION:
END RESULT:
All systems were installed by the project deadline and matched the modular units’ hire period.
Some of the platforms were designed with additional width to allow wheelchair users turning space and to ensure all users capable of shutting a door can independently do so. Plus, if needed, call for assistance in the event of an evacuation.
FEATURES INCLUDED:
- Infill Handrail - this product prevents users from climbing or falling through gaps.
- Yellow Tread - this is a safety feature designed to help those with impaired vision identify the nose of the ramp and steps and distinguish any level changes. Yellow is also one of the easiest colours to see because of its ability to reflect light.
- Mesh Platform - the self-draining mesh allows water to pass through rather than collect on the surface.
- Rest Platform – a rest platform at 5 metres is required to allow the user to pause.
- 1100mm High Rail – these handrails attach to any level sections.
- Continuous Handrail - this handrail system ensures users always have support to hold onto.
- Standard colour: Black - Ramps are powder coated black to create a durable finish that is tougher than conventional paint.















