Weigh Cabin Platform & Steps, Birmingham
Modular Building
Birmingham, West Midlands
PROJECT BACKGROUND:
The project entailed installing weighbridges and a weigh cabin.
The cabin was elevated 1.5m above ground level, supported by columns.
Trucks approached the cabin for preliminary inspections before the weighbridges determined the load. This process involved weighing empty lorries and subsequently reweighing them after they were loaded.
REQUIREMENT:
We were assigned the responsibility of providing and installing an L-shaped walkway around the cabin, complete with steps to facilitate access for site operatives.
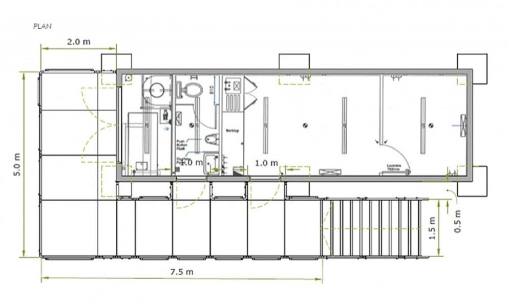
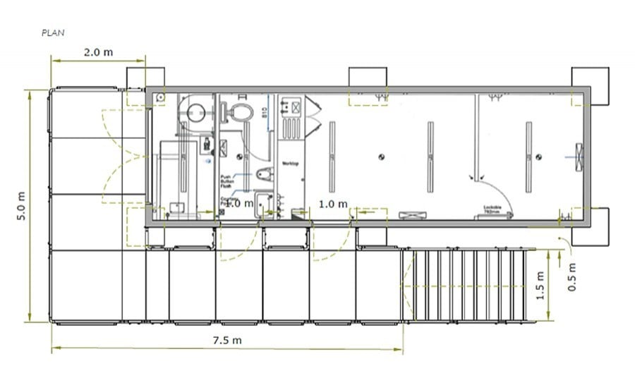
CAD DRAWINGS:
END RESULT:
A Rapid Ramp platform, elevated approximately 1.5 meters high and equipped with steps, was successfully constructed.
The desired height was achieved using adjustable telescopic legs. Cross bracing was implemented with longer-length tubes to ensure stability under all platform legs. The entire system was completed within a quick three-day turnaround time.
FEATURES INCLUDED:
- Infill Handrail - This product prevents users from climbing or falling through gaps.
- Yellow Tread - This safety feature aids those with impaired vision in identifying the nose of a step or level change.
- Trombone Ends - These are added to the ends of a step unit to prevent clothes catching.
- Mesh Platform - The self-draining mesh allows water to pass through rather than collect on the surface.
- 1100mm High Rail – These handrails attach to any level sections.
- Continuous Handrail - This handrail system ensures users always have support to hold onto.
- Standard Colour - Black is the standard handrail colour. Handrails are powder-coated to create a durable finish that is tougher than conventional paint.




