Sacred Heart Primary School
Education
Barrow-in-Furness, Cumbria
REQUIREMENT:
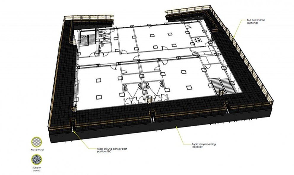
Walkway platforms were required around the prefabricated classroom block to accommodate the varying gradients and ensure wheelchair access to each entrance. Additionally, connecting ramps were needed to provide a smooth transition to ground level.
With a tight deadline to meet, the contractor required a swift solution and a same-day initial tender submission. We were happy to deliver this promptly.
DESIGN PHASE:
INSTALLATION:
The ramps and platforms were installed alongside the canopy contractor. Our project management team scheduled the ramp installation in phases to prevent any clashes between trades using the area. Effective project management ensured we remained ‘rapid’.
Furthermore, the rubber crumb surface was completed within 24 hours, allowing the project to be delivered on time without disruption.
FEATURES INCLUDED:
- Looped Trombone Ends – Prevents clothes from snagging at the ends.
- Slip-Resistant Mesh Platform - A multi-directional walkway with self-draining steel mesh and a galvanised finish.
- Standard Colour: Black - Powder-coated black finish for greater durability than traditional paint.
- Adjustable Telescopic Legs - Adaptable to various threshold heights.
- Anti-climbing Infill Handrail - Prevents users from climbing or falling through gaps.
- Slip-Resistant Yellow Tread - Enhances safety by making step edges and level changes more visible to those with impaired vision.
- Yellow Mid-Handrail - Designed for young children and wheelchair users, this handrail is set at a height of 600mm above the system's surface.
- Solid Hoarding - This skirt is purposefully designed to deter unauthorised access to the underside of the ramp, making it a frequent choice for schools and other public buildings.
- Safetread Rubber Crumb Surface –This soft, slip-resistant surface offers excellent impact absorption, improving safety by reducing the risk of falls. Made from the same materials used in soft play areas, it is ideal for public spaces such as nurseries and schools. Available in a variety of colours, it maintains its performance in all weather conditions.
HAVE A SIMILAR REQUIREMENT?
REQUEST A QUICK PRICE
Estimates can be returned within 24hrs if there is clear information given, including project address, drawings, photos and contact details.








