Rotherham, South Yorkshire
A HORSESHOE SHAPE RAMP CONFIGURATION
Residential
Rotherham, South Yorkshire
REQUIREMENT:
A modular ramp design that could easily accommodate the width of a bi-folding door and provide enough room for a wheelchair to turn.
SITE SURVEY & DRAWINGS:
Lidar scanning technology was used during the site surveying process. The machine scanned and virtually mapped out the whole area, including the building and varied terrain levels.
Our designer then plotted a 3D visual of the ramp on top of the lidar model. This technology enables us to continue to carry out site surveys efficiently and within a minimal time frame.
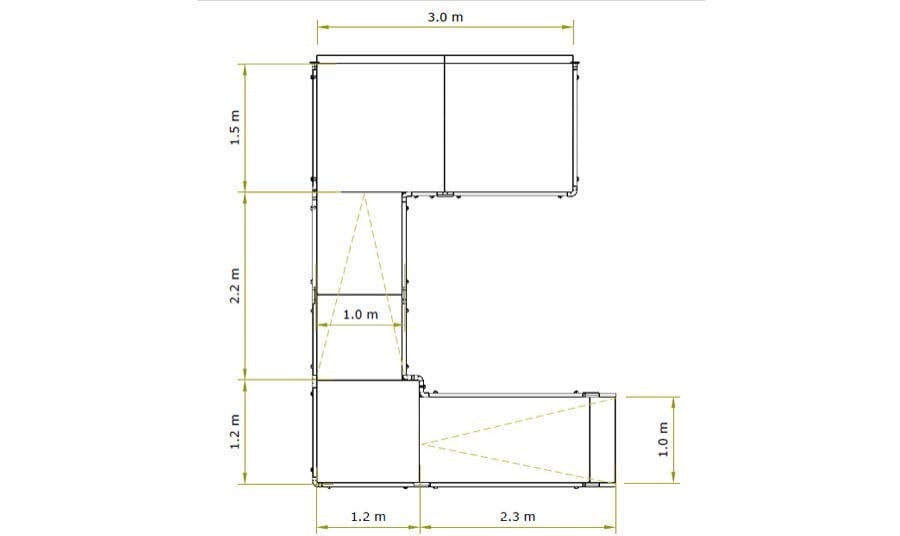
The final 3D and 2D drawings were given to the client with their quotation.
END RESULT:
Once the new door was fitted, the ramp was Installed in a horseshoe shape configuration within a day, minimizing disruption.
The ramp could be used instantly after completion and included a 1:12 gradient. This is the minimum gradient expected for dwelling ramps to achieve under Document M and K of the Building Regulations.
FEATURES INCLUDED:
- Standard Handrail - this handrail system ensures users always have support to hold onto.
- Trombone Ends - these are added to the ends of a Rapid Ramp to prevent clothes catching.
- Mesh Platform - the self-draining mesh allows water to pass through rather than collect on the surface.
- Black Powder Coated Finish – rails are coated with thermosetting powder to provide a non-conductive, non-slip and scratch resistant surface.
- Telescopic Legs - these can be adjusted to accommodate different threshold heights.





