Network Rail Bolton MDU
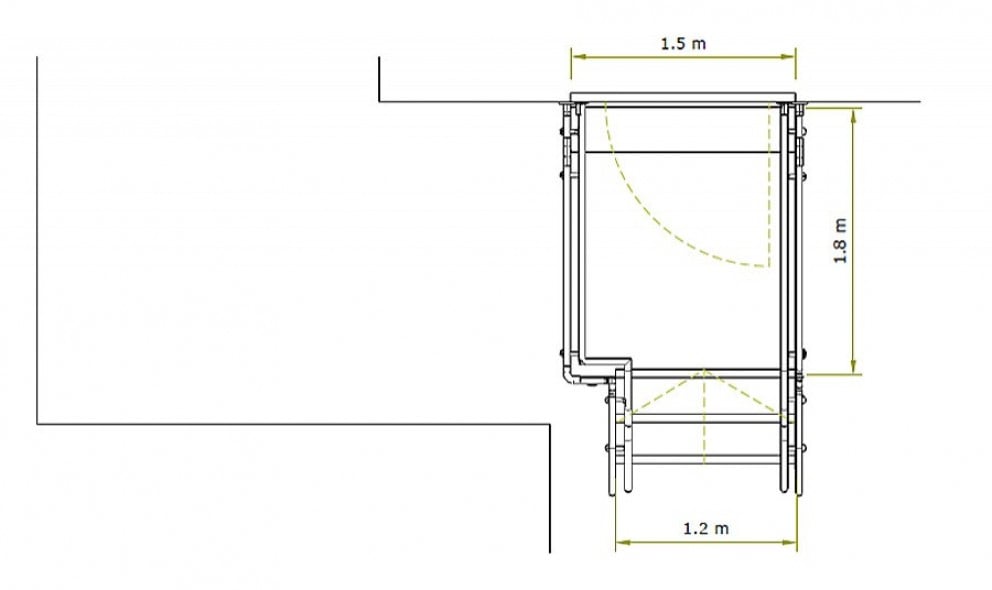
BESPOKE RETURN AND SECONDARY DOUBLE HANDRAILS
Modular Building
Bolton, Greater Manchester
REQUIREMENT:
SITE SURVEY & DRAWINGS:
During the site survey, lidar scanning technology was used by our surveyor.
The machine scanned the whole area, including the building, concrete, and the different floor levels.
Once the photographing process was completed, our CAD designer plotted a 3D visual of the ramp on top of the lidar model.
The final drawings were provided along with structural calculations, making it easy for the Network Rail engineers.
The lidar modelling process helps contextualise the drawings by placing the system in a virtual representation of the real environment.
We aim to conduct site surveys efficiently and within a minimal time frame. This technology enables us to continue to achieve these objectives and more.
END RESULT:
Once the existing systems were dismantled, a Rapid Ramp and three sets of steps were installed from different entry points.
Our access systems are made from hot-dipped galvanised steel components to prevent rusting and kill moss. Galvanising is a process where a protective coating of zinc is applied.
Plus, all components (excluding the platforms and ramp legs) are powder-coated to create a durable finish that is tougher than conventional paint.
Return and secondary double handrails in yellow were included in the design. Yellow is one of the easiest colours to see due to its ability to reflect light, therefore will aid the visually impaired.
All handrails achieve a warm-to-touch finish with a nylon coating of low thermal conductivity so that body heat is not conducted away from the hand.
FEATURES INCLUDED:
- Mesh Platform - self-draining mesh allows water to pass through rather than collect on the surface.
- Trombone Ends - these are added to the ends of a Rapid Ramp to prevent clothes catching.
- Telescopic Legs - these can be adjusted to accommodate threshold heights.
- Continuous Handrail - this handrail system ensures users always have a support to hold onto.
- Standard Colour Black - ramps are powder-coated black to create a hard finish that is tougher than conventional paint.
- Full Balustrade, Infill handrails - this product prevents users from climbing or falling through gaps.
- Secondary Double Handrails In Yellow - often used by young children and wheelchair users.
- Yellow & White Tread - this is a safety feature designed to help those with impaired vision identify the nose of the ramp and any level changes.
ACCESS RAMPS & STEPS FOR PREFABRICATED BUILDINGS:
Like modular buildings, our ramps & steps are prefabricated systems, carrying benefits including:
- A fast construction time - Ramp installations are typically completed within a 1 to 2-day turnaround time. Components are manufactured and stored in-house.
- Easy to remove – Once no required, ramps can be disassembled within a few hours.
- Design and build flexibility - Ramps can be re-designed and re-configured to suit different sized areas.
- Cost-effective – Our access ramp has a life span of over 25 years with no maintenance costs.
- Environmental benefits – Ramp components can be reused under our ramp recycling scheme.
- Safety features - Includes handrails for grip and a slip-resistant mesh platforms as standard.


















