MLB Retail Store, London Stadium
Events
London
BACKGROUND:
During the 2023 MLB London Series, a two-game showdown unfolded between the Chicago Cubs and the St. Louis Cardinals at London Stadium in Queen Elizabeth Olympic Park.
REQUIREMENT:
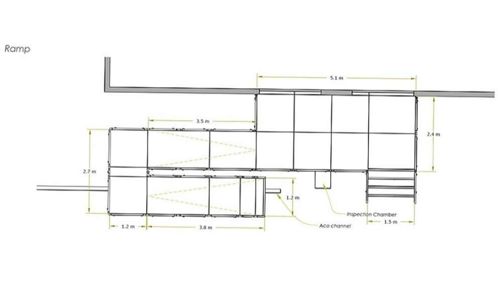
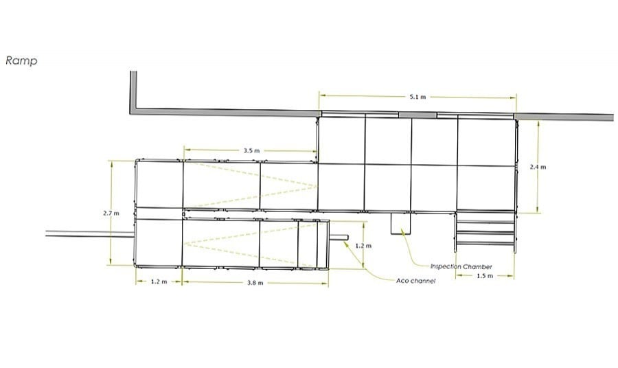
Providing a temporary modular ramp with steps to ensure safe, convenient access to the pop-up shop for customers purchasing official merchandise.
Like the structure itself, our access solutions are fully reusable and easy to dismantle, allowing them to be quickly relocated and reinstalled at new sites.
This flexibility is a major advantage over concrete or timber ramps, which are typically single-use and often end up in landfill after removal.
DESIGN PHASE:
INSTALLATION:
Once the shop was in place on the stadium concourse, we efficiently supplied and assembled a temporary ramp and step system within a two-day turnaround time.
After the conclusion of the London Series, we promptly removed the systems within a few hours, returning the components to our rental inventory for their next use.
FEATURES INCLUDED:
- Infill Handrail - This component is designed to prevent users from climbing or falling through gaps.
- Yellow Tread - This safety feature aids individuals with impaired vision in identifying the ramp's edge and any changes in level.
- Trombone Ends - These additions are placed at the ends of a Rapid Ramp to prevent clothes from snagging.
- Mesh Platform - The self-draining mesh allows water to pass through, preventing water accumulation on the surface.
- Continuous Handrail - This handrail system ensures that users always have a support to hold onto.
- Standard colour: Black - The ramps come in a powder-coated black finish, ensuring durability that surpasses conventional paint.
- Solid Hoarding - This skirt is purposefully designed to deter unauthorised access to the underside of the ramp, making it a frequent choice for public buildings.
HAVE A SIMILAR REQUIREMENT?
REQUEST A QUICK PRICE
Estimates can be returned within 24hrs if there is clear information given, including project address, drawings, photos and contact details.



