Aspen Building, Kingston Hospital
Healthcare
Kingston upon Thames, London
PROJECT BACKGROUND:
Work finished on a newly constructed, purpose-built audiology and ear, nose and throat (ENT) building at Kingston Hospital.
The new, fully accessible modular building, named the Aspen Building, is located at the centre of the hospital site, and contains dedicated audiology consultation rooms, laboratory and acoustic booths, examination and procedure rooms, a dedicated voice therapy room.
REQUIREMENT:
Ramped access from both the fire exit door and the main entrance.
Our steel ramp system was chosen over wood, which can ignite when exposed to fire. The Rapid Ramp system is made of fire-resistant galvanised steel.
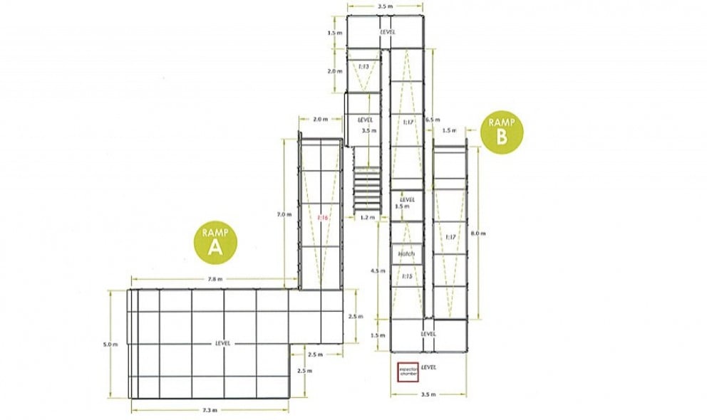
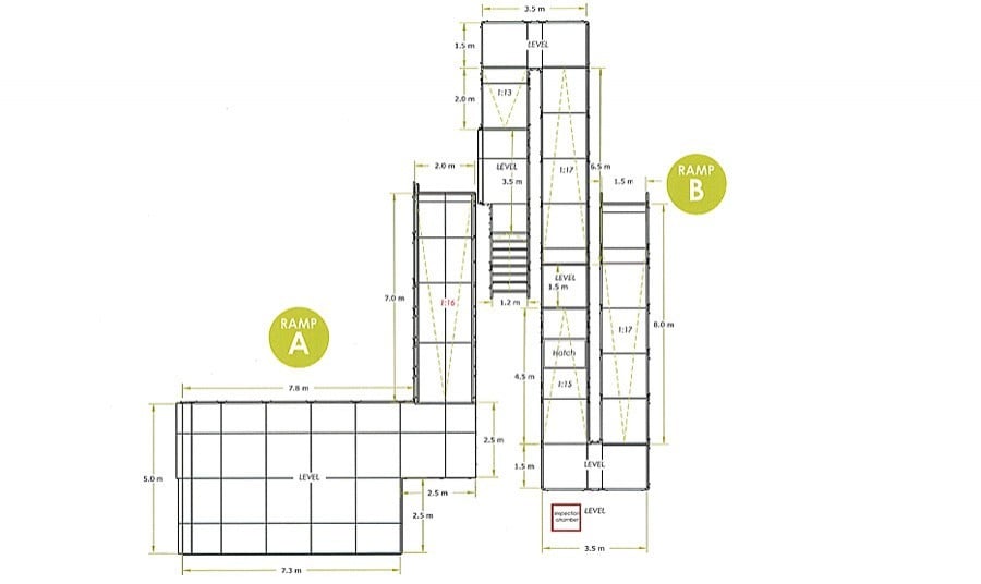
CAD DRAWINGS:
In-house CAD drawings were generated using the technical drawings provided by the client for the project.
Ramp A features custom-designed yellow return and secondary double handrails. Yellow, being highly reflective, is a particularly visible colour, which makes it beneficial for assisting individuals with visual impairments.
Ramp B incorporates multiple turning platforms, skilfully navigates around an obstruction, and includes an access hatch to enable staff entry into the inspection chamber beneath. Additionally, Ramp B seamlessly integrates a fully compliant step system.
END RESULT:
Our in-house team handled the complete process of designing, manufacturing, and installing the ramp systems.
Ramp A connects to the fire exit door and incorporates underside mesh.
Ramp B was installed on top of concrete and provides access to the main entrance. It avoids a post, and extended-length tubes were used for cross-bracing to maintain stability across all platform legs.
Solid Underside Hoarding was installed beneath Ramp B. This weather-resistant aluminium panel serves as a barrier to prevent litter, pests, and public access.
FEATURES INCLUDED:
- Infill Handrail - this product prevents users from climbing or falling through gaps.
- Yellow Tread - this is a safety feature designed to help those with impaired vision identify the nose of the ramp and any level changes.
- Trombone Ends - these are added to the ends of a Rapid Ramp to prevent clothes catching.
- Mesh Platform - the self-draining mesh allows water to pass through rather than collect on the surface.
- Continuous Handrail - this handrail system ensures users always have support to hold onto.
- Standard colour: Black - Ramps are powder coated black to create a durable finish that is tougher than conventional paint.
EXTRA FEATURE INCLUDED:
- Compliant Step Unit - an ideal addition to any ramp installation, providing the access needed for able-bodied users. They can also be stand-alone units, independent of the Rapid Ramp System.
- Access Hatch - a hatch opens allowing a person easy entry to the underground services.
- Standard Underside Mesh (Ramp A) - this is designed to prevent children from gaining access to the underneath of the ramp. It is often specified for schools and public buildings.
- Solid Underside Hoarding (Ramp B) - A weather-proof, aluminium front that will prevent litter, vermin, and public access.
HAVE A SIMILAR REQUIREMENT?
REQUEST A QUICK PRICE
Estimates can be returned within 24hrs if there is clear information given, including project address, drawings, photos and contact details.











